Projekt Raum Berlin

Projekt Visitenkarte

Ort

Raum Berlin

Grundriss

8 x 3 Meter, zweigeschossig

Status

Bewohnt

Baubeginn

??

Pflanzenkläranlage

Nein

Stromanschluß

Ja

Wasseranschluß

Ja

Ansichten

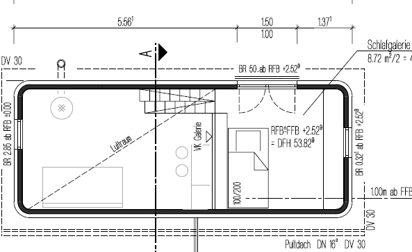
Grundriss
Figure 1. Grundriss
Grundriss OG
Figure 2. Grundriss OG
Norden
Figure 3. Norden
Osten
Figure 4. Osten
Süden
Figure 5. Süden
Westen
Figure 6. Westen