Projekt Raum Rottweil
Ort |
Raum Rottweil |
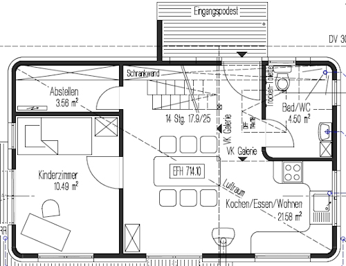
Grundriss |
8 x 5 Meter, zweigeschossig |
Status |
Bauantrag genehmigt |
Baubeginn |
Frühjahr 2020 |
Pflanzenkläranlage |
Ja |
Stromanschluß |
Nein |
Wasseranschluß |
Nein |
Ort |
Raum Rottweil |
Grundriss |
8 x 5 Meter, zweigeschossig |
Status |
Bauantrag genehmigt |
Baubeginn |
Frühjahr 2020 |
Pflanzenkläranlage |
Ja |
Stromanschluß |
Nein |
Wasseranschluß |
Nein |